空き家情報|伊豆大島と移住希望者をつなぐマッチングサイト「シマラボ」

伊豆大島の移住ならシマラボ
合同会社シマラボ 〒100-0101 東京都大島町元島字水溜210番6 045-1234-5678
一覧へ戻る

波浮港の名店「港鮨」の建物

住所: 波浮港
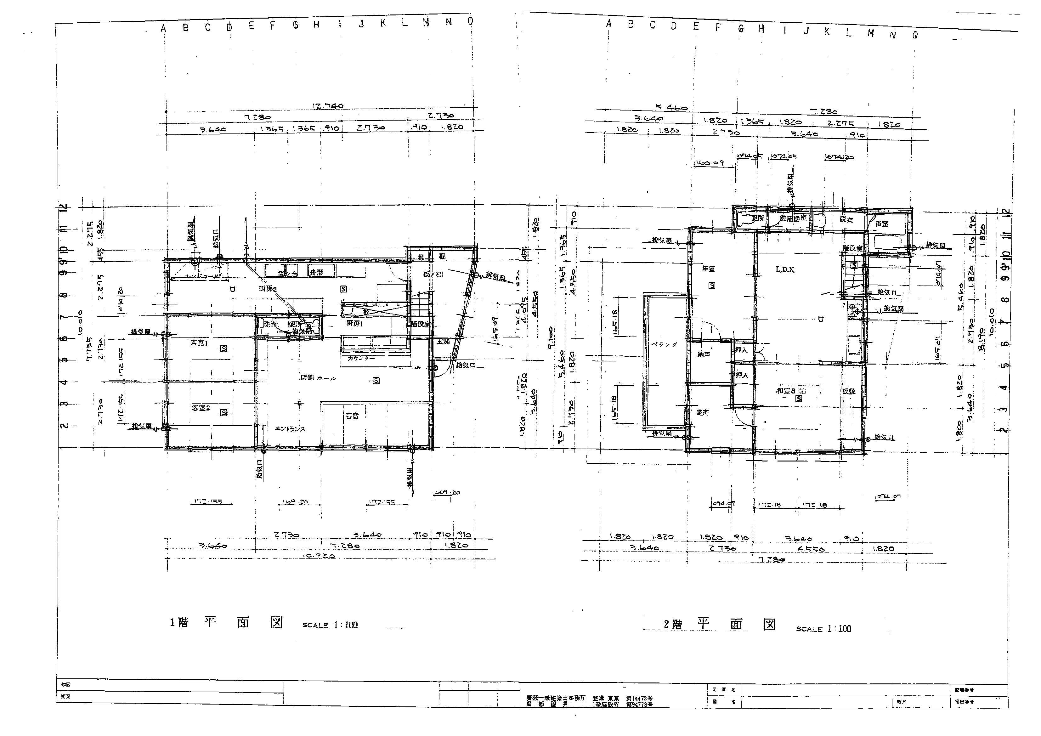
広さ: 土地 199.39㎡ 1階店舗部分 90.26㎡ 2階居宅部分 75.79㎡ 地目 宅地
タイプ: 売買 ※金額はお問合せ下さい。

伊豆大島を代表する名店「港鮨」の建物です。 1階が店舗、2階が居宅となっています。 店舗部分は居抜きとなります。 居宅部分の家電製品などは応相談となります。 ※現在、居住及び営業中のため、直接のお問い合わせはお控え下さい。

伊豆大島を代表する名店「港鮨」の建物です。 1階が店舗、2階が居宅となっています。 店舗部分は居抜きとなります。 居宅部分の家電製品などは応相談となります。  ※現在、居住及び営業中のため、直接のお問い合わせはお控え下さい。拡大する

【注意事項】
現況有姿でのお引渡しとなります。
建物の建築はご自身でお調べください。
その他の規制等は必ず管轄官庁でお調べください。
上記物件概要と異なる場合がございます。物件の詳細・調査はご自身で行ってください。
所有権移転等の手続きは、当社指定の司法書士で行います。
所有権移転等の購入費用は、すべてお申し込み者様のご負担となります。

掲載日:令和8年1月20日

拡大する

外観

拡大する

外観

拡大する

駐車場の倉庫

拡大する

店舗入り口

拡大する

店舗レジ

拡大する

店内

拡大する

店内

拡大する

店内

拡大する

店内

拡大する

カウンター

拡大する

カウンター

拡大する

カウンター

拡大する

店内和室

拡大する

店内和室

拡大する

店内和室

拡大する

店内洗面

拡大する

店内トイレ

拡大する

厨房へ

拡大する

厨房

拡大する

厨房

拡大する

厨房

拡大する

厨房

拡大する

居宅側玄関

拡大する

居宅への階段

拡大する

リビング

拡大する

リビング

拡大する

キッチン

拡大する

キッチン

拡大する

和室A

拡大する

和室A

拡大する

和室A

拡大する

和室からの景色

拡大する

和室からの景色

拡大する

洋室A

拡大する

洋室A

拡大する

ベランダ

拡大する

洋室B

拡大する

洋室B

拡大する

水回りエリア

拡大する

洗面

拡大する

洗濯機置き場

拡大する

トイレ

拡大する

お風呂

拡大する

お風呂

拡大する

お風呂

拡大する

お風呂

拡大する

外から脱衣所に入れるので海で泳いだ後に便利です。

間取り:

間取り拡大する
間取り拡大する

詳細情報:

→大きな地図で見る

住 所:東京都大島町波浮港1番地

電 気:東京電力

ガ ス:プロパンガス

水 道:大島町役場

駐車場:1台分あり

キーワード:土地 , 販売 , 住居 , 居抜き , 土地付き , 店舗向き , 飲食店向け , 海沿い , 商店街近く , 港近く , 波浮

一覧へ戻る


さくら小学校6年生による
移住者向けPR動画
ページトップへ
ページトップへ